BYT 2+1 K REKONSTRUKCI V ZÁBLATÍ U PRACHATIC

Lokalita

Záblatí

Popis

Po práci provětrat kolo, projít se k řece, užívat si naplno vesnickou pohodu... . Chcete žít klidně a přírodě na dosah, ale do Prachatic to mít sotva čtvrthodinku? Tak se přijeďte podívat na byt v Záblatí.

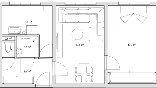
Dispozice bytu je 2+1 o celkové výměře 56,8 m2. Čeká tu na vás obývací pokoj, ložnice, kuchyně, koupelna, samostatná toaleta a prostorná chodba. K bytu patří i sklep o velikosti 5,5 m2.

Byt je ve třetím patře družstevního bytového domu a je před rekonstrukcí, což umožňuje novému majiteli přizpůsobit si interiér dle vlastních představ.

Obývací pokoj je prostorný, světlý s původními, zachovalými parketami, které dodávají místnosti jedinečný charakter.

Ložnice je rovněž s parketami, vhodná jako ložnice či dětský pokoj. Velké okno zajišťuje dostatek denního světla.

Samostatná kuchyň s oknem má dostatek prostoru pro novou, moderní kuchyňskou linku a jídelní kout.

V koupelně je vana a toaleta je samostatná. Prostorná chodba s možností umístění vestavěných skříní.

Byt je vhodný jako investice díky své poloze a možnosti přizpůsobení rekonstrukcí. Ideální pro pronájem či vlastní bydlení.

Obec Záblatí se nachází 15 km od Prachatic, kolem protéká říčka Blanice. V dosahu je veškerá občanská vybavenost. V blízkosti se nachází mateřská a základní škola, obchody, zdravotnická zařízení a zastávka MHD. Okolí je vhodné pro rodiny s dětmi a nabízí příležitosti k relaxaci i sportovním aktivitám.


Technické parametry:

Byt je v družstevním vlastnictví a je před rekonstrukcí. Ohřev vody a vytápění zajišťuje plynový kotel, voda i kanalizace jsou obecní.

Prodávající si vyhrazuje právo vybrat kupujícího na základě jím zvolených kritérií.

Popis

Po práci provětrat kolo, projít se k řece, užívat si naplno vesnickou pohodu... . Chcete žít klidně a přírodě na dosah, ale do Prachatic to mít sotva čtvrthodinku? Tak se přijeďte podívat na byt v Záblatí.

Dispozice bytu je 2+1 o celkové výměře 56,8 m2. Čeká tu na vás obývací pokoj, ložnice, kuchyně, koupelna, samostatná toaleta a prostorná chodba. K bytu patří i sklep o velikosti 5,5 m2.

Byt je ve třetím patře družstevního bytového domu a je před rekonstrukcí, což umožňuje novému majiteli přizpůsobit si interiér dle vlastních představ.

Obývací pokoj je prostorný, světlý s původními, zachovalými parketami, které dodávají místnosti jedinečný charakter.

Ložnice je rovněž s parketami, vhodná jako ložnice či dětský pokoj. Velké okno zajišťuje dostatek denního světla.

Samostatná kuchyň s oknem má dostatek prostoru pro novou, moderní kuchyňskou linku a jídelní kout.

V koupelně je vana a toaleta je samostatná. Prostorná chodba s možností umístění vestavěných skříní.

Byt je vhodný jako investice díky své poloze a možnosti přizpůsobení rekonstrukcí. Ideální pro pronájem či vlastní bydlení.

Obec Záblatí se nachází 15 km od Prachatic, kolem protéká říčka Blanice. V dosahu je veškerá občanská vybavenost. V blízkosti se nachází mateřská a základní škola, obchody, zdravotnická zařízení a zastávka MHD. Okolí je vhodné pro rodiny s dětmi a nabízí příležitosti k relaxaci i sportovním aktivitám.


Technické parametry:

Byt je v družstevním vlastnictví a je před rekonstrukcí. Ohřev vody a vytápění zajišťuje plynový kotel, voda i kanalizace jsou obecní.

Prodávající si vyhrazuje právo vybrat kupujícího na základě jím zvolených kritérií.

Lokalita

Záblatí

Kontaktujte makléře

Kontaktujte makléře

Podobné nemovitosti v nabídce

Vybíráme pro vás z těch nejlepších nemovitostí po celé zemi. A pokud si z naší nabídky vyberete, stačí kontaktovat makléře, který se vám bude plně věnovat.

Prodáno

Prodáno

Prodáno

VÍCE PODOBNÝCH

Přihlásit k newsletteru