BYT 3+1 VE VIMPERKU

Cena

3 000 000 Kč za nemovitost

Lokalita

Vimperk

Popis

Pro rohlíky pět minut, do školy deset a za zábavou do centra sotva čtvrt hodinky pěšky. Hledáte tiché bydlení na kraji města, kde budete mít vše potřebné na pár kroků? Přijeďte se podívat na byt po částečné rekonstrukci ve Vimperku.

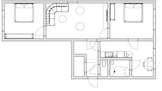
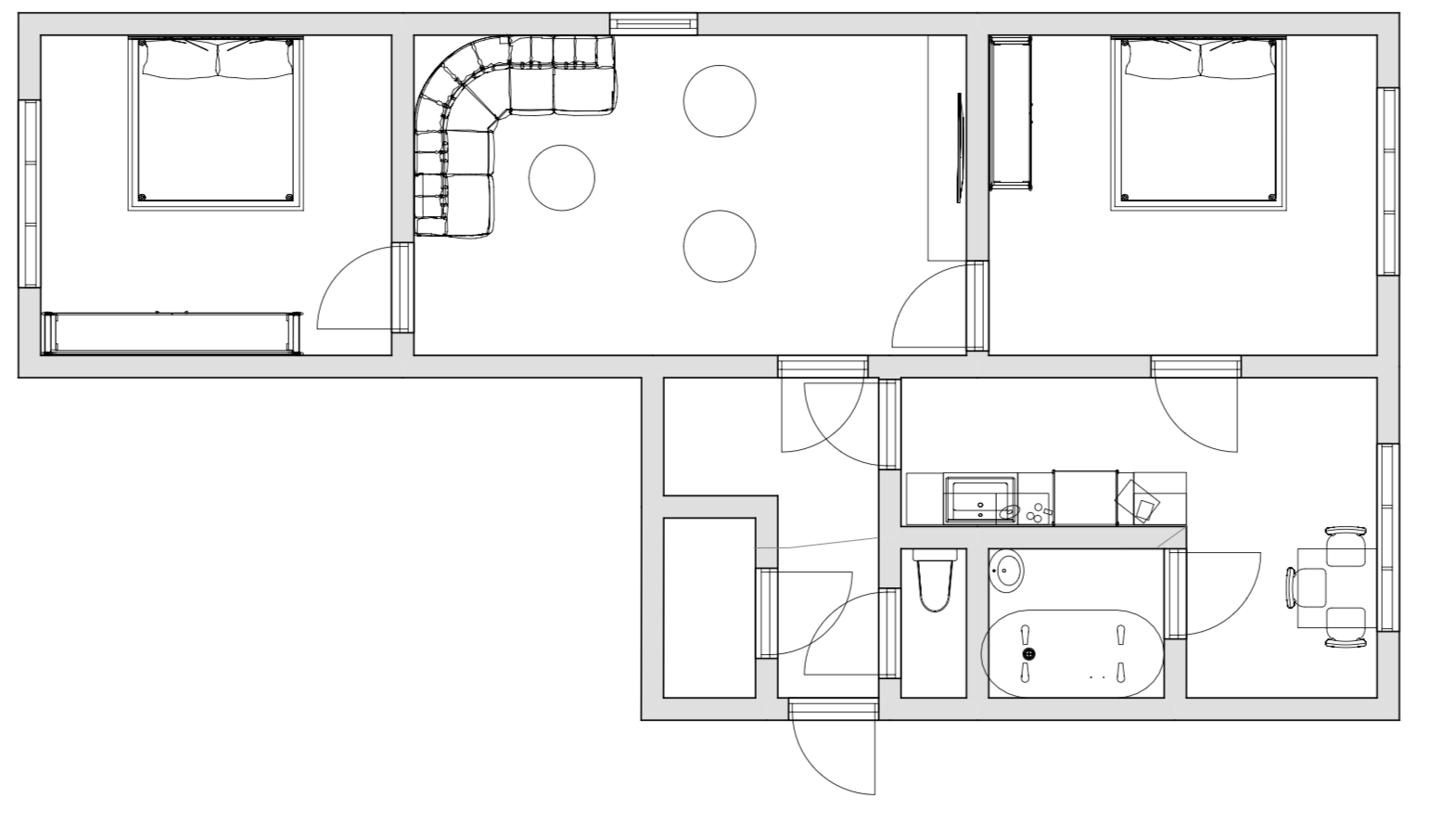
Byt s výměrou 65 m² má dispozici 3+1 a skládá se z obývacího pokoje, samostatné kuchyně, dvou pokojů, koupelny s vanou a odděleného WC.

Prošel částečnou rekonstrukcí – má zděné jádro, vyrovnané podlahy a elektřinu převážně v mědi. Moderní kuchyňská linka má dost úložných prostor a u jídelního koutu se nají celá rodina. 

Pro chvíle spolu i osamotě jsou tu dvě ložnice a obývák s francouzskými okny. Ta si užijete hlavně v létě. Stačí je otevřít dokořán, pustit dovnitř čerstvý vzduch a užít si výhled do zeleně. 

Koupelna s vanou je starší, ale plně funkční. Můžete se klidně nastěhovat a modernizaci odložit na později. Toaleta je oddělená. 

Byt se nachází v posledním patře kompletně revitalizovaného domu – nad hlavou vám tak nebude nikdo dupat. Do patra vás pohodlně vyveze nový výtah a o úsporu energií se postará zateplená střecha a nová okna.

Parkovat můžete v suchu na parkovišti pod mostem a přímo u domu je zastávka autobusu. 


Technické parametry:

Byt je po částečné rekonstrukci. Má vyzděné jádro, v některých pokojích jsou nové podlahy s vyrovnaným podkladovým betonem, většina elektřiny je v mědi. Vytápění i kanalizace jsou obecní. 


Prodávající si vyhrazuje právo vybrat kupujícího na základě jím zvolených kritérií.

Popis

Pro rohlíky pět minut, do školy deset a za zábavou do centra sotva čtvrt hodinky pěšky. Hledáte tiché bydlení na kraji města, kde budete mít vše potřebné na pár kroků? Přijeďte se podívat na byt po částečné rekonstrukci ve Vimperku.

Byt s výměrou 65 m² má dispozici 3+1 a skládá se z obývacího pokoje, samostatné kuchyně, dvou pokojů, koupelny s vanou a odděleného WC.

Prošel částečnou rekonstrukcí – má zděné jádro, vyrovnané podlahy a elektřinu převážně v mědi. Moderní kuchyňská linka má dost úložných prostor a u jídelního koutu se nají celá rodina. 

Pro chvíle spolu i osamotě jsou tu dvě ložnice a obývák s francouzskými okny. Ta si užijete hlavně v létě. Stačí je otevřít dokořán, pustit dovnitř čerstvý vzduch a užít si výhled do zeleně. 

Koupelna s vanou je starší, ale plně funkční. Můžete se klidně nastěhovat a modernizaci odložit na později. Toaleta je oddělená. 

Byt se nachází v posledním patře kompletně revitalizovaného domu – nad hlavou vám tak nebude nikdo dupat. Do patra vás pohodlně vyveze nový výtah a o úsporu energií se postará zateplená střecha a nová okna.

Parkovat můžete v suchu na parkovišti pod mostem a přímo u domu je zastávka autobusu. 


Technické parametry:

Byt je po částečné rekonstrukci. Má vyzděné jádro, v některých pokojích jsou nové podlahy s vyrovnaným podkladovým betonem, většina elektřiny je v mědi. Vytápění i kanalizace jsou obecní. 


Prodávající si vyhrazuje právo vybrat kupujícího na základě jím zvolených kritérií.

Cena

3 000 000 Kč za nemovitost

Lokalita

Vimperk

Kontaktujte makléře

TICHÝ BYT PO ČÁSTEČNÉ REKONSTRUKCI

Nechcete se pouštět do nákladných rekonstrukcí? V tomhle bytě nemusíte. Zásadní věci už jsou hotové – o soukromí a klid se vám postará zděné jádro, o nízké náklady nová okna i zateplená střecha. Byt je navíc pod střechou a nad hlavou vám tak nemá kdo dupat.

highlight 1

SKVĚLÁ POLOHA POBLÍŽ CENTRA

Všechno, co potřebujete k životu, budete mít na dosah ruky. Na náměstí, do školy, školky, na nákup i k doktorovi dojdete pěšky – supermarkety jsou od domu pár kroků a do školy je to sotva 10 minut chůze. A když se vám nebude chtít po svých, přímo u domu je zastávka autobusu. 

highlight 2

Kontaktujte makléře

Podobné nemovitosti v nabídce

Vybíráme pro vás z těch nejlepších nemovitostí po celé zemi. A pokud si z naší nabídky vyberete, stačí kontaktovat makléře, který se vám bude plně věnovat.

Rezervováno

Rezervováno

BYT 2+KK V PRACHATICÍCH

3 490 000 Kč

Prachatice

VÍCE

Prodáno

Prodáno

VÍCE PODOBNÝCH

Přihlásit k newsletteru