BYT 4+KK VE ZDÍKOVCI NA ŠUMAVĚ

Cena

5 514 600 Kč za nemovitost

Lokalita

Zdíkovec, Zdíkov

Popis

Místečko pro víkendový únik z velkoměsta, klidné bydlení v přírodě, nebo snad chytrá investice? Je to jen na vás. Tenhle apartmán na Šumavě má ohromný potenciál. Přijeďte ho objevit do Zdíkovce.

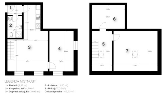
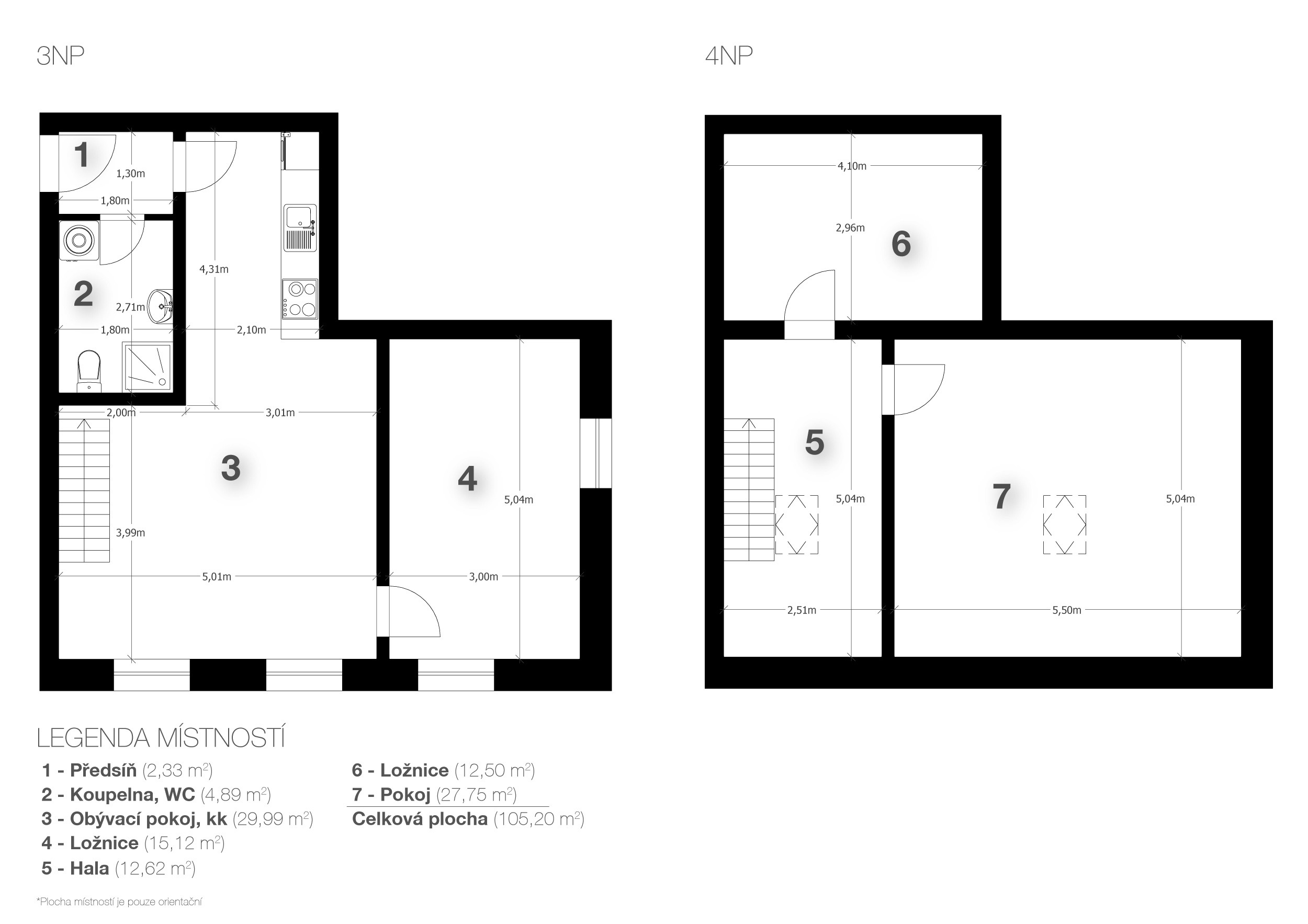
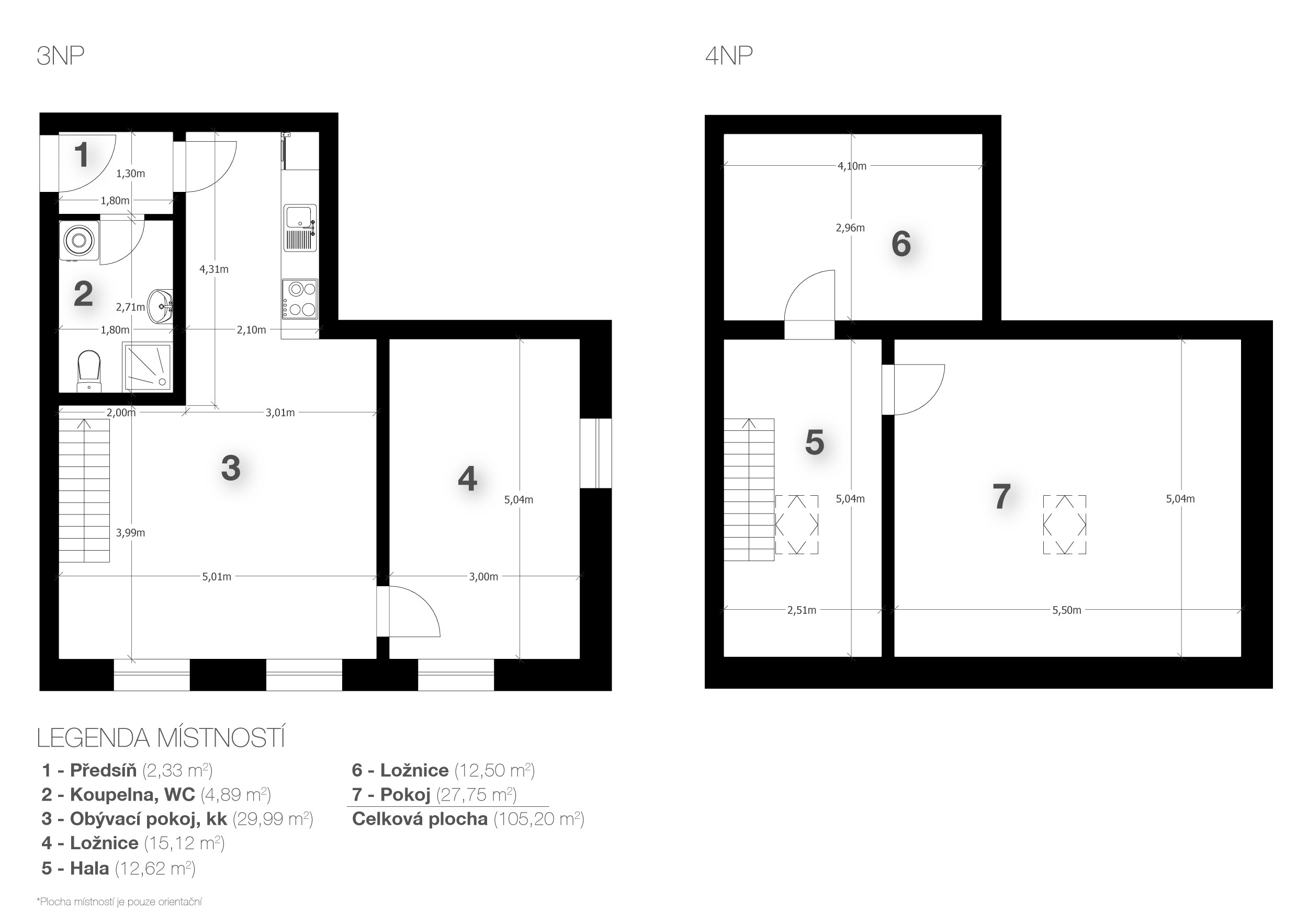
Byt je mezonetový, má dispozici 4+kk a výměru 105 m2. Nachází se ve 3. patře, které bylo dostavěno v roce 2023 – vše je tu tak jako ze škatulky. 

V přízemí je obývací pokoj s kuchyní, ložnice a koupelna, v patře jsou další dva pokoje a přístup do půdního prostoru. K bytu patří sklep a společná kolárna. Na pozemku za domem je soukromé parkoviště, kde vždycky v klidu zaparkujete. 

Obývací pokoj s velkými okny a jihozápadní orientací si zamilujete. Snídaně vám zpříjemní výhled na šumavskou přírodu a večer si tu zahrajete deskovky s celou partou.

Kuchyně je trochu za rohem, takže máte klid na vaření, ale zůstanete v kontaktu se zbytkem rodiny. Ve třech ložnicích v přízemí a patře se pohodlně složí i početnější rodina nebo parta přátel. V koupelně je sprchový kout a WC. 

Pokud zvažujete jak spojit příjemné s užitečným, můžete byt pronajímat. Je kompletně zařízený, takže si nemusíte dělat starosti s vybavováním – stačí založit profil na rezervačním portálu. O turisty mířící na Šumavu tu nebudete mít nouzi. 

Technické parametry

Byt je nízkoenergetický, má vlastní elektroměr a vodoměr. Ohřev vody zajišťuje bojler, v domě je centrální autonomně řízená rekuperace a topí se podlahovým topením napojeným na tepelné čerpadlo. Teplotu a ohřev vody můžete ovládat dálkově z mobilu. Vodovod a kanalizace jsou obecní. 

Prodávající si vyhrazuje právo vybrat kupujícího na základě jím zvolených kritérií.



Popis

Místečko pro víkendový únik z velkoměsta, klidné bydlení v přírodě, nebo snad chytrá investice? Je to jen na vás. Tenhle apartmán na Šumavě má ohromný potenciál. Přijeďte ho objevit do Zdíkovce.

Byt je mezonetový, má dispozici 4+kk a výměru 105 m2. Nachází se ve 3. patře, které bylo dostavěno v roce 2023 – vše je tu tak jako ze škatulky. 

V přízemí je obývací pokoj s kuchyní, ložnice a koupelna, v patře jsou další dva pokoje a přístup do půdního prostoru. K bytu patří sklep a společná kolárna. Na pozemku za domem je soukromé parkoviště, kde vždycky v klidu zaparkujete. 

Obývací pokoj s velkými okny a jihozápadní orientací si zamilujete. Snídaně vám zpříjemní výhled na šumavskou přírodu a večer si tu zahrajete deskovky s celou partou.

Kuchyně je trochu za rohem, takže máte klid na vaření, ale zůstanete v kontaktu se zbytkem rodiny. Ve třech ložnicích v přízemí a patře se pohodlně složí i početnější rodina nebo parta přátel. V koupelně je sprchový kout a WC. 

Pokud zvažujete jak spojit příjemné s užitečným, můžete byt pronajímat. Je kompletně zařízený, takže si nemusíte dělat starosti s vybavováním – stačí založit profil na rezervačním portálu. O turisty mířící na Šumavu tu nebudete mít nouzi. 

Technické parametry

Byt je nízkoenergetický, má vlastní elektroměr a vodoměr. Ohřev vody zajišťuje bojler, v domě je centrální autonomně řízená rekuperace a topí se podlahovým topením napojeným na tepelné čerpadlo. Teplotu a ohřev vody můžete ovládat dálkově z mobilu. Vodovod a kanalizace jsou obecní. 

Prodávající si vyhrazuje právo vybrat kupujícího na základě jím zvolených kritérií.



Cena

5 514 600 Kč za nemovitost

Lokalita

Zdíkovec, Zdíkov

Kontaktujte makléře

CELOROČNÍ POHODA NA ŠUMAVĚ

Zdíkovec leží přímo na hranici Šumavy – uprostřed lesů, turistických stezek a naprostého klidu. V létě vyrazíte na houby nebo na kolo, v zimě naskočíte na běžky nebo vyrazíte na sjezdovku. Příroda začína hned za plotem a nudit se tu nebudete.

Z Českých Budějovic jste tu cobydup – v pátek po práci stačí sbalit věci a za hodinku už relaxujete mezi voňavým jehličím. A když něco zapomenete, do Vimperka na nákup je to deset minut jízdy. 

highlight 1

KOMPLETNĚ VYBAVENÝ A NÍZKOENERGETICKÝ

Proč si dělat starosti s rekonstrukcí, když můžete do nového. Tenhle byt z roku 2023 je jako ze škatulky. Tepelné čerpadlo s podlahovkou vám zahřeje nohy a zároveň udrží účty za energie na uzdě, centrální rekuperace vyvětrá a zatopíte si přes appku na dálku. 

Byt je navíc kompletně vybavený – od pohovky přes rychlovarku až po povlečení. Pokud zvažujete investici do krátkodobého pronájmu, stačí zveřejnit inzerát. 

highlight 2

Kontaktujte makléře

Podobné nemovitosti v nabídce

Vybíráme pro vás z těch nejlepších nemovitostí po celé zemi. A pokud si z naší nabídky vyberete, stačí kontaktovat makléře, který se vám bude plně věnovat.

Není v nabídce

TŘI BYTY 4+KK V HRABICÍCH

6 990 000 Kč

Vimperk

VÍCE

BYT 3+1 VE VIMPERKU

3 000 000 Kč

Vimperk

VÍCE
VÍCE PODOBNÝCH

Přihlásit k newsletteru