CHATA SE ZAHRADOU V BEROUNĚ

Lokalita

Beroun

Popis

Posbírat voňavé jahody, ošplouchnout se v ledovém potůčku, večeřet pod hvězdami… Nikde si neužijete takovou letní pohodu, jako na chatě. Obzvlášť, když leží uprostřed krásné berounské přírody.

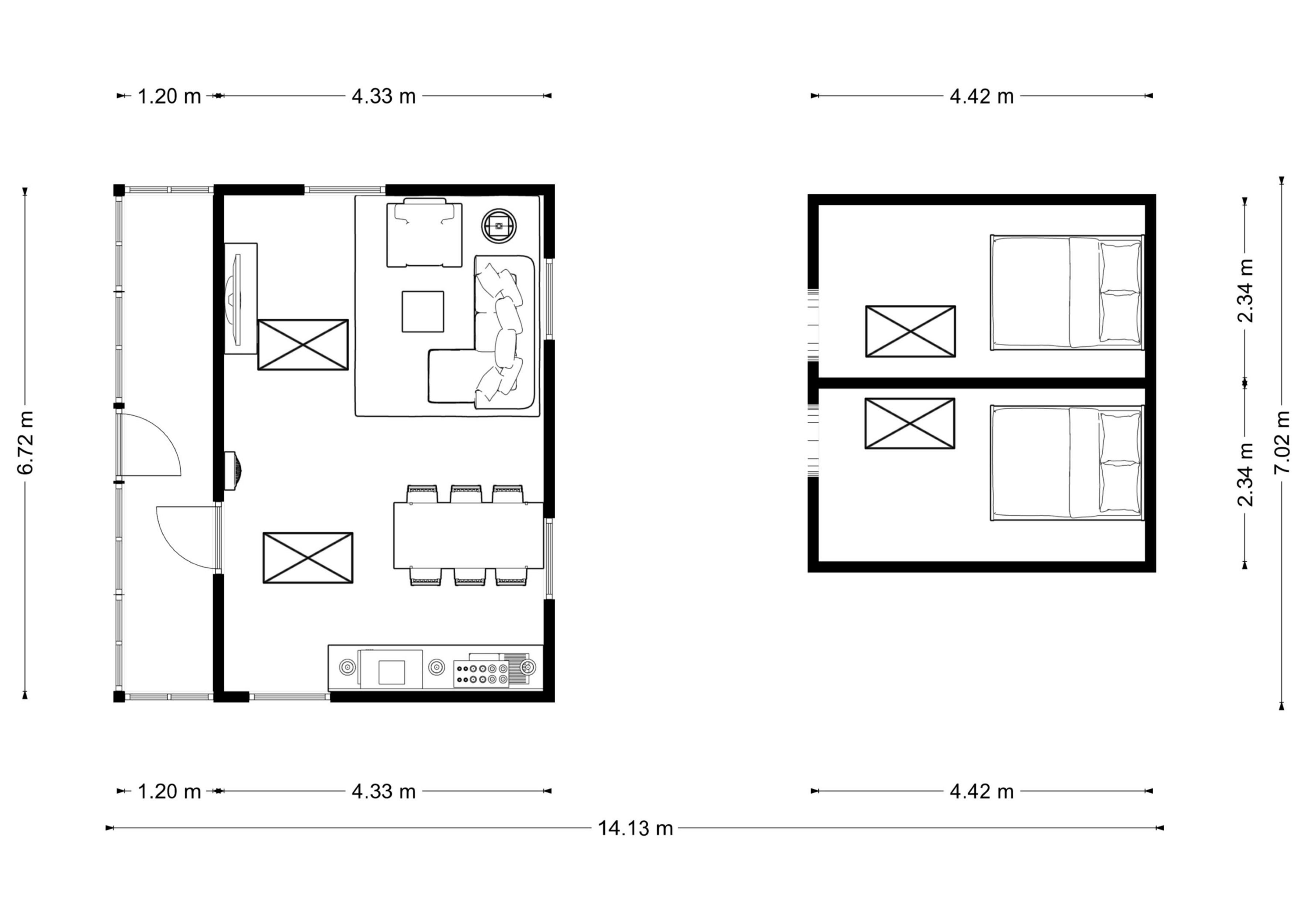
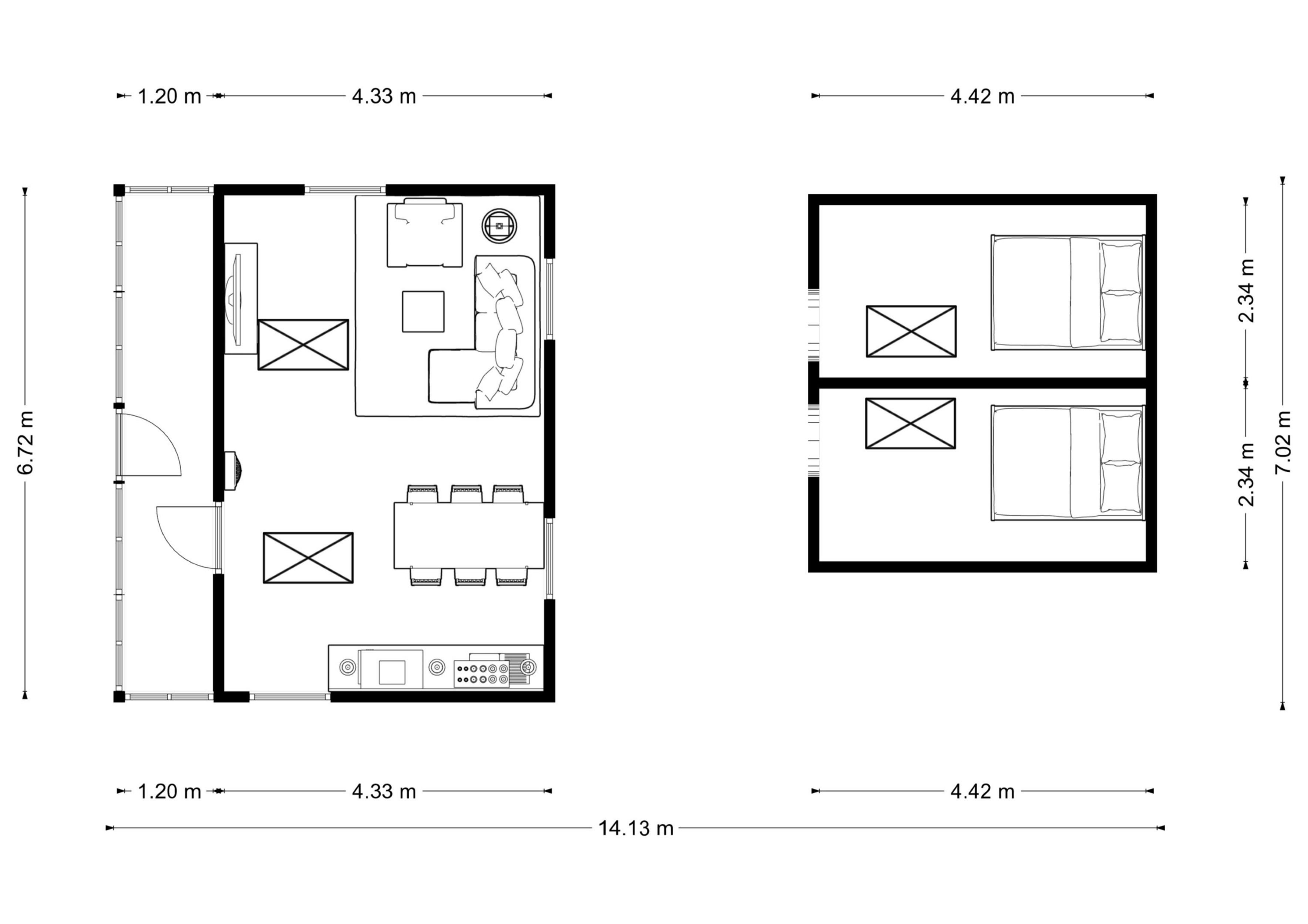
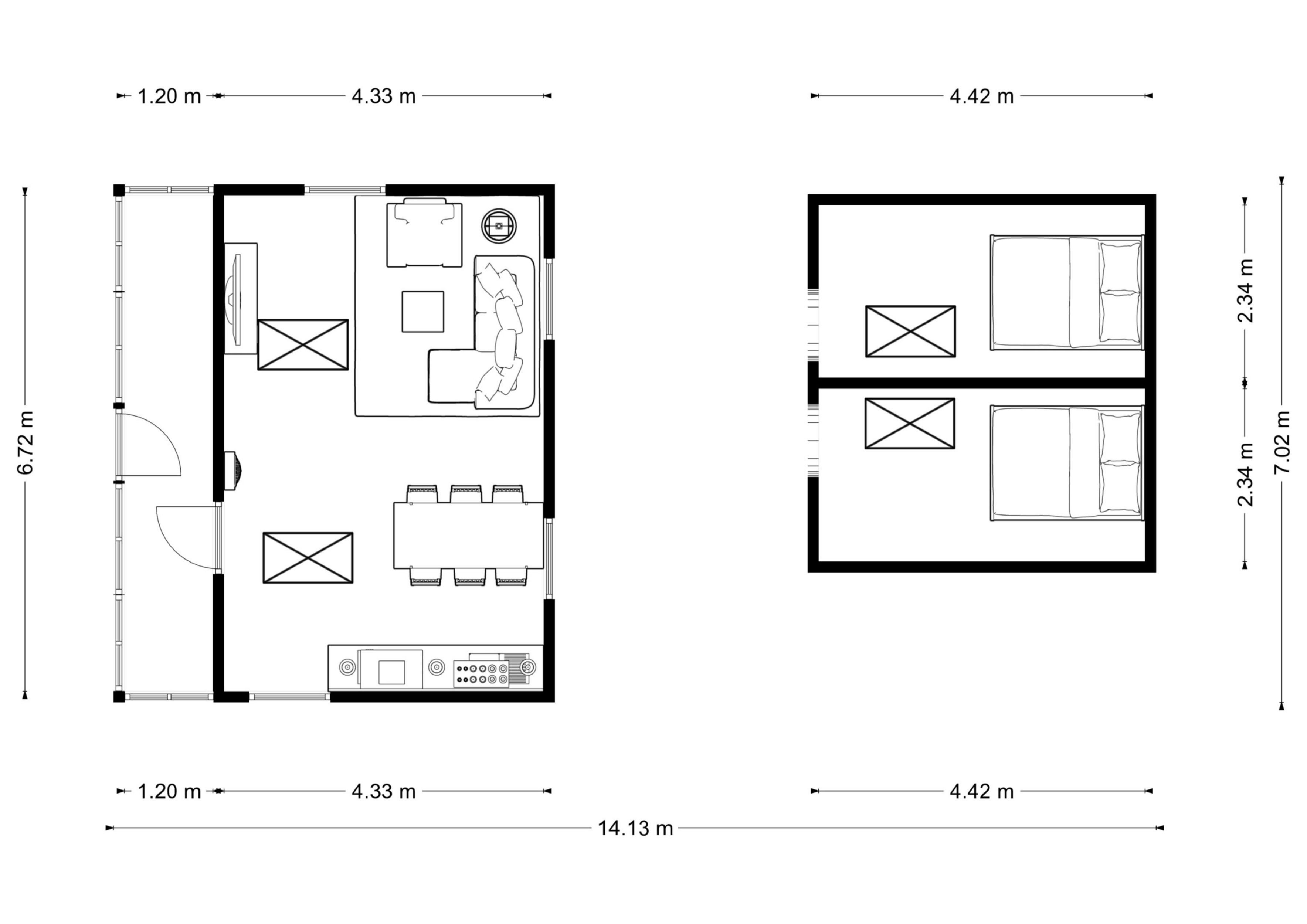
Chata má výměru 57 m² a skládá se z přízemí, podkroví a sklepa. V obývacím pokoji se za chladnějších večerů ohřejete u kamen, něco na zub připravíte u malé linky a vyspíte se v jedné ze dvou podkrovních ložnic.

V letošním roce dostala chata novou střechu, nátěr, komín i elektřinu. Nový kabát má i interiér – je vymalováno, položená podlaha, nainstalovaná stropní světla a obložené podkroví. Nová kopaná studna Vám zajistí dostatek vody, která je zavedená do chaty. Je tu nově vybudovaná plnohodnotná koupelna a voda je zavedena i do kuchyně. 

Na pozemku o velikosti 763 m² se rozkládá zahrada s pergolou a vzrostlými stromy. A protože je chata na samém konci chatové oblasti, budete tu mít naprostý klid. Osvěžit se můžete v potůčku, který teče pod chatou – a pokud toužíte po plnohodnotné koupačce, místa je tu dost i na bazén. 

Technické parametry:

Chata prošla v roce 2025 velkou rekonstrukcí zahrnující novou střechu, komín i výměnu elektřiny včetně přívodu z antoníčku, novou kopanou studnu. Je tu plnohodnotná koupelna. Do kuchyně je nově přivedena voda. Z potoku můžete čerpat užitkovou vodu.

Prodávající si vyhrazuje právo vybrat kupujícího na základě jím zvolených kritérií.

Popis

Posbírat voňavé jahody, ošplouchnout se v ledovém potůčku, večeřet pod hvězdami… Nikde si neužijete takovou letní pohodu, jako na chatě. Obzvlášť, když leží uprostřed krásné berounské přírody.

Chata má výměru 57 m² a skládá se z přízemí, podkroví a sklepa. V obývacím pokoji se za chladnějších večerů ohřejete u kamen, něco na zub připravíte u malé linky a vyspíte se v jedné ze dvou podkrovních ložnic.

V letošním roce dostala chata novou střechu, nátěr, komín i elektřinu. Nový kabát má i interiér – je vymalováno, položená podlaha, nainstalovaná stropní světla a obložené podkroví. Nová kopaná studna Vám zajistí dostatek vody, která je zavedená do chaty. Je tu nově vybudovaná plnohodnotná koupelna a voda je zavedena i do kuchyně. 

Na pozemku o velikosti 763 m² se rozkládá zahrada s pergolou a vzrostlými stromy. A protože je chata na samém konci chatové oblasti, budete tu mít naprostý klid. Osvěžit se můžete v potůčku, který teče pod chatou – a pokud toužíte po plnohodnotné koupačce, místa je tu dost i na bazén. 

Technické parametry:

Chata prošla v roce 2025 velkou rekonstrukcí zahrnující novou střechu, komín i výměnu elektřiny včetně přívodu z antoníčku, novou kopanou studnu. Je tu plnohodnotná koupelna. Do kuchyně je nově přivedena voda. Z potoku můžete čerpat užitkovou vodu.

Prodávající si vyhrazuje právo vybrat kupujícího na základě jím zvolených kritérií.

Lokalita

Beroun

Kontaktujte makléře

POHODA V PŘÍRODĚ KOUSEK OD MĚSTA

Ráno do práce a odpoledne hurá na chatu. Ještě aby ne, když ji budete mít tak blízko. Chata leží na konci chatové oblasti V Pánvích prakticky uprostřed lesů a přitom tu z centra Berouna budete za 7 minut. Za 20 minut jste tu z okraje Prahy a za 40 i z Plzně. Víkendy v berounské přírodě si užijete, ať už máte základnu kdekoli. 


highlight 1

CHATA SE ZAHRADOU PO REKONSTRUKCI

Ráno káva pod pergolou, pak výlet po okolí, koupačka v potůčku a večer se vyspat v pohodlí vlastní ložnice. V téhle nově zrekonstruované chatě se poskládá celá rodina, klidně i s pár kamarády navíc. Chata má výměru 57 m2 a kdo se nevejde do ložnic v podkroví, usne jak špalek na gauči v obýváku. 

highlight 2

Kontaktujte makléře

Podobné nemovitosti v nabídce

Vybíráme pro vás z těch nejlepších nemovitostí po celé zemi. A pokud si z naší nabídky vyberete, stačí kontaktovat makléře, který se vám bude plně věnovat.

RODINNÝ DŮM V PRAZE - MODŘANY

17 980 000 Kč

Praha 12 - Modřany

VÍCE

Prodáno

Prodáno

VÍCE PODOBNÝCH

Přihlásit k newsletteru