CHATKA SE ZAHRADOU V LEPTAČI U PRACHATIC

Lokalita

Chatová oblast Leptač

Popis

Ráno zalít zahrádku, pak se svlažit v bazéně, večer roztopit krb a hodit maso na gril... Vypadá takhle váš ideální víkend? Tak se přijeďte podívat na chatku se zahradou, která na nového majitele čeká v Leptači u Prachatic.

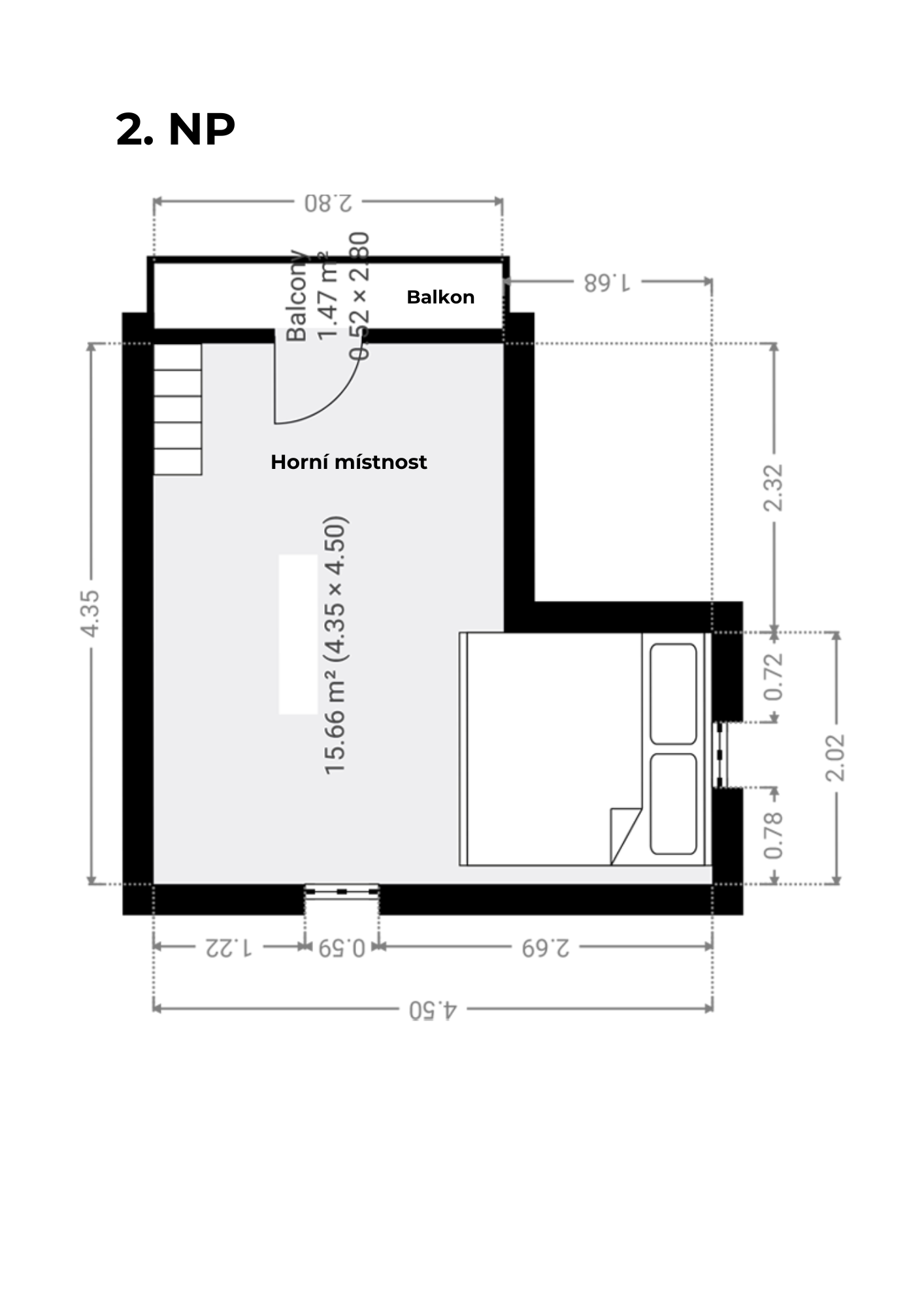
Chata má přízemí s výměrou 20 m² a obytné podkroví s balkonem o velikosti dalších 20 m². A k tomu je kompletně podsklepená – na ukládání jablek nebo basy s pivem budete mít místa dost. 

V přízemí je starší, ale funkční kuchyňka. Do patra, kde se pohodlně vyspí až 5 lidí, se dostanete po schůdcích. Nahoře na vás čeká balkon s výhledem do zahrady. 

Chatka stojí na pozemku o velikosti 379 m² s ovocnými stromy a udržovanou zahrádkou. Místa tu budete mít dost na záhonky i bazén. Na chatku navazuje dlážděná krytá terasa, kde se schováte před deštěm i ostrým sluncem. A to nejlepší? Krásný venkovní krb s udírnou. 

Za chladných večerů vás v teple udrží kamna v přízemí. Na pozemku je užitková voda a pitný pramen je v docházkové vzdálenosti. V chatce je zavedená elektřina a nechybí ani splachovací záchod. 

Prodávající si vyhrazuje právo vybrat kupujícího na základě jím zvolených kritérií.

Popis

Ráno zalít zahrádku, pak se svlažit v bazéně, večer roztopit krb a hodit maso na gril... Vypadá takhle váš ideální víkend? Tak se přijeďte podívat na chatku se zahradou, která na nového majitele čeká v Leptači u Prachatic.

Chata má přízemí s výměrou 20 m² a obytné podkroví s balkonem o velikosti dalších 20 m². A k tomu je kompletně podsklepená – na ukládání jablek nebo basy s pivem budete mít místa dost. 

V přízemí je starší, ale funkční kuchyňka. Do patra, kde se pohodlně vyspí až 5 lidí, se dostanete po schůdcích. Nahoře na vás čeká balkon s výhledem do zahrady. 

Chatka stojí na pozemku o velikosti 379 m² s ovocnými stromy a udržovanou zahrádkou. Místa tu budete mít dost na záhonky i bazén. Na chatku navazuje dlážděná krytá terasa, kde se schováte před deštěm i ostrým sluncem. A to nejlepší? Krásný venkovní krb s udírnou. 

Za chladných večerů vás v teple udrží kamna v přízemí. Na pozemku je užitková voda a pitný pramen je v docházkové vzdálenosti. V chatce je zavedená elektřina a nechybí ani splachovací záchod. 

Prodávající si vyhrazuje právo vybrat kupujícího na základě jím zvolených kritérií.

Lokalita

Chatová oblast Leptač

Kontaktujte makléře

RELAX UPROSTŘED PŘÍRODY

Na procházku do lesa nebo na kole po okolí… V okolí chatky se bude líbit každému milovníkovi aktivního odpočinku. Čeká tu na vás krásná příroda, les, rybník a spousta zajímavých míst, která můžete vyrazit objevovat.

highlight 1

CHATOVÁ OBLAST BLÍZKO U MĚSTA

Leptač je malá vesnice, hned u Prachatic. Pro čerstvé pečivo nebo zapomenutou omáčku na grilovačku to tak budete mít sotva 10 minut jízdy autem. Na návsi je navíc zastávka autobusu, který vás odveze přímo do Prachatic. 

highlight 2

Kontaktujte makléře

Podobné nemovitosti v nabídce

Vybíráme pro vás z těch nejlepších nemovitostí po celé zemi. A pokud si z naší nabídky vyberete, stačí kontaktovat makléře, který se vám bude plně věnovat.

Prodáno

MODERNÍ DŮM V NEBAHOVECH

7 980 000 Kč

Nebahovy

VÍCE

Prodáno

Prodáno

VÍCE PODOBNÝCH

Přihlásit k newsletteru