POZEMEK S HRUBOU STAVBOU DOMU VE CHVALOVICÍCH

Cena

9 480 000 Kč za nemovitost

Lokalita

Chvalovice

Popis

Hrubá stavba hotová, okna a dveře osazené... Chcete si ušetřit starosti se stavbou a rovnou se pustit do zařizování podle svého vkusu? Přijeďte se podívat na stavební parcelu ve Chvalovicích, kde na vás čeká rozestavěný dům a spousta možností. 

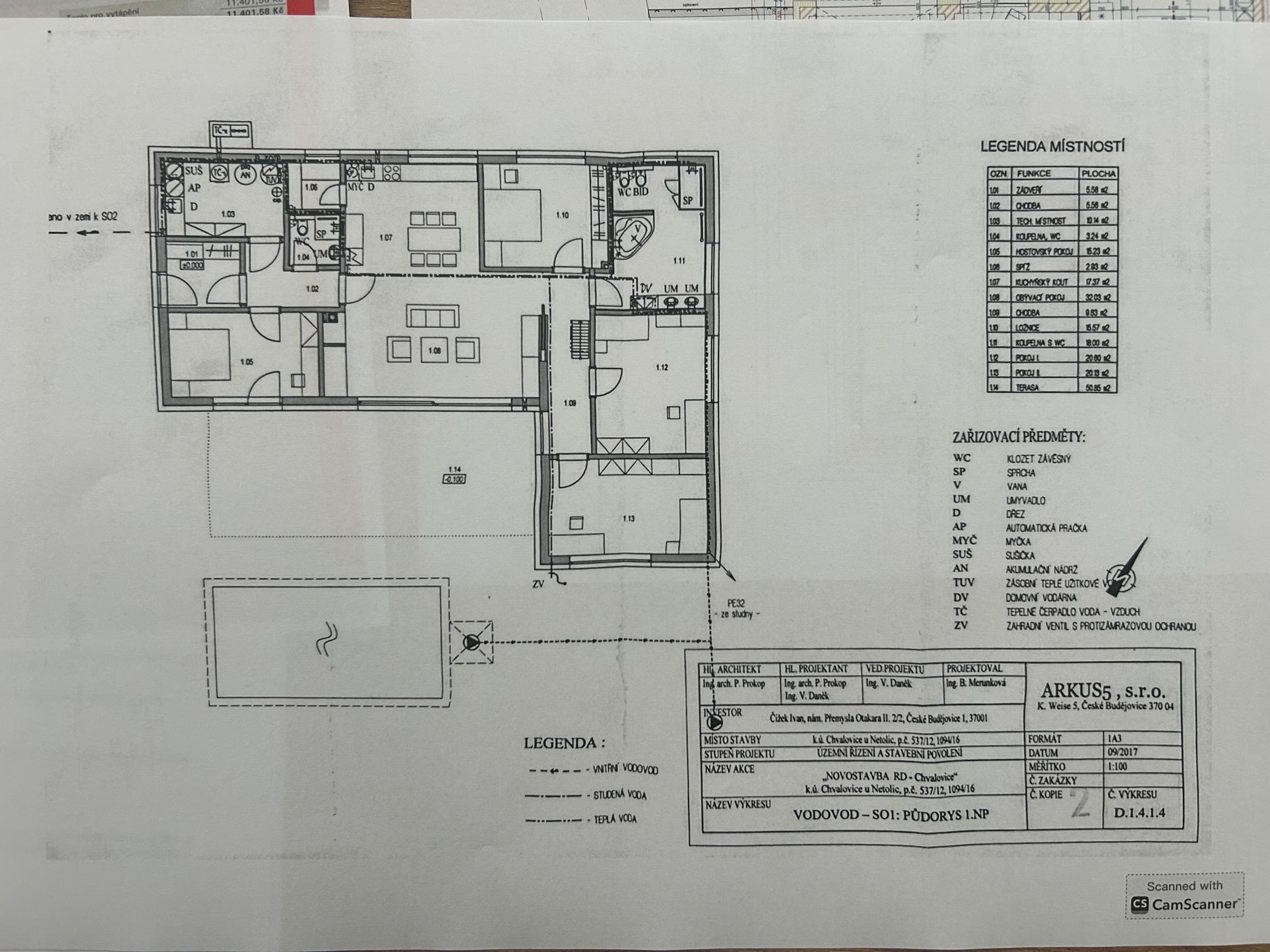
Stavební pozemek má výměru 3 700 m² a můžete ho využít celý, nebo rozdělit na dvě samostatné stavební parcely. Na větší části o velikosti 2 200 m² už stojí rozestavěný dům ve fázi hrubé stavby s užitnou plochou 180 m² a dispozicí 4+kk. 

V naplánovaném obývacím pokoji nechybí šestimetrový HS portál, který vám orámuje krásné výhledy a v létě zvětší obytnou plochu o celou venkovní atmosféru. Kromě místa na kuchyňskou linku je tu i spíž a v zimě rozhodně oceníte přípravu na krb.

Dvě ložnice jsou situované v klidové části domu, kde je také koupelna s vanou a sprchou. Další dva menší pokoje jsou každý z jedné strany obýváku. V plánu je i druhá koupelna se sprchou a WC. Pračku, sušičku i čerpadlo a kotel budete mít schované v technické místnosti.

Součástí prodeje je stavební buňka s dispozicí 3+kk, kterou můžete využít jako zázemí při dokončování stavby. Připravená je i základová deska pro dvougaráž se skladem o výměře 52 m².

Technické parametry

Dům se prodává ve stavu hrubé stavby. Odpad bude řešený akumulační jímkou, voda ze studny. Dešťové vody budou sváděny do retenční nádrže. Vytápění je navrženo jako podlahové s tepelným čerpadlem, jako sekundární zdroj elektrokotel s výměníkem.

Prodávající si vyhrazuje právo vybrat kupujícího na základě jím zvolených kritérií.

Popis

Hrubá stavba hotová, okna a dveře osazené... Chcete si ušetřit starosti se stavbou a rovnou se pustit do zařizování podle svého vkusu? Přijeďte se podívat na stavební parcelu ve Chvalovicích, kde na vás čeká rozestavěný dům a spousta možností. 

Stavební pozemek má výměru 3 700 m² a můžete ho využít celý, nebo rozdělit na dvě samostatné stavební parcely. Na větší části o velikosti 2 200 m² už stojí rozestavěný dům ve fázi hrubé stavby s užitnou plochou 180 m² a dispozicí 4+kk. 

V naplánovaném obývacím pokoji nechybí šestimetrový HS portál, který vám orámuje krásné výhledy a v létě zvětší obytnou plochu o celou venkovní atmosféru. Kromě místa na kuchyňskou linku je tu i spíž a v zimě rozhodně oceníte přípravu na krb.

Dvě ložnice jsou situované v klidové části domu, kde je také koupelna s vanou a sprchou. Další dva menší pokoje jsou každý z jedné strany obýváku. V plánu je i druhá koupelna se sprchou a WC. Pračku, sušičku i čerpadlo a kotel budete mít schované v technické místnosti.

Součástí prodeje je stavební buňka s dispozicí 3+kk, kterou můžete využít jako zázemí při dokončování stavby. Připravená je i základová deska pro dvougaráž se skladem o výměře 52 m².

Technické parametry

Dům se prodává ve stavu hrubé stavby. Odpad bude řešený akumulační jímkou, voda ze studny. Dešťové vody budou sváděny do retenční nádrže. Vytápění je navrženo jako podlahové s tepelným čerpadlem, jako sekundární zdroj elektrokotel s výměníkem.

Prodávající si vyhrazuje právo vybrat kupujícího na základě jím zvolených kritérií.

Cena

9 480 000 Kč za nemovitost

Lokalita

Chvalovice

Kontaktujte makléře

HRUBÁ STAVBA PŘIPRAVENÁ K DOKONČENÍ

Výkopy, základy, krovy, konstrukce… Chcete do nového, ale ne se trápit s hrubou stavbou? Tady už je hotovo. Stavba je uzavřená střechou i okny a na vás tak zbude ta zábavnější část – dokončení interiéru. A díky stavební buňce na pozemku tu můžete dokonce bydlet už během stavby.

highlight 1

KLIDNÉ BYDLENÍ S DOBROU DOSTUPNOSTÍ

Chvalovice leží jen 5 km od Netolic, kde najdete veškerou občanskou vybavenost. Obec se navíc aktivně rozvíjí – budují se tu dětská hřiště, upravují veřejná prostranství a plánuje se sportovní zázemí. A až vás vesnická pohoda omrzí, stačí vyrazit do 19 km vzdálených Českých Budějovic.

highlight 2

Kontaktujte makléře

Podobné nemovitosti v nabídce

Vybíráme pro vás z těch nejlepších nemovitostí po celé zemi. A pokud si z naší nabídky vyberete, stačí kontaktovat makléře, který se vám bude plně věnovat.

MODERNÍ DŮM V NEBAHOVECH

7 980 000 Kč

Nebahovy

VÍCE

Prodáno

Není v nabídce

POLOVINA STATKU V NOVÉ OBOŘE

11 990 000 Kč

Hrdějovice - Opatovice

VÍCE
VÍCE PODOBNÝCH

Přihlásit k newsletteru