RODINNÝ DŮM SE ZAHRADOU V ČESKÉM KRUMLOVĚ

Cena

7 190 000 Kč za nemovitost

Lokalita

Český Krumlov - Nádražní Předměstí

Popis

Probudit se s výhledem na Křížový vrch, vyprovodit děti do školy přes ulici a po práci relaxovat na terase obklopené zelení… Hledáte dům, který můžete proměnit v domov přesně podle svých představ? V Českém Krumlově na vás čekají celá tři podlaží potenciálu.

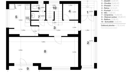
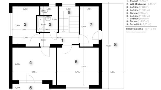
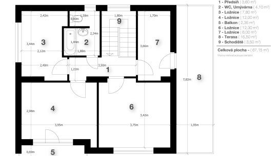
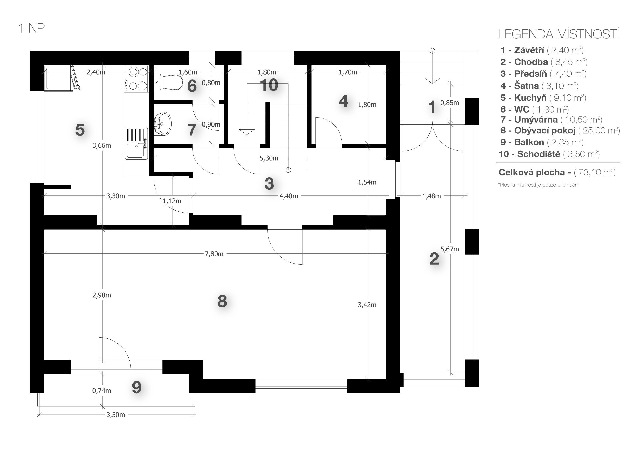
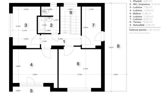
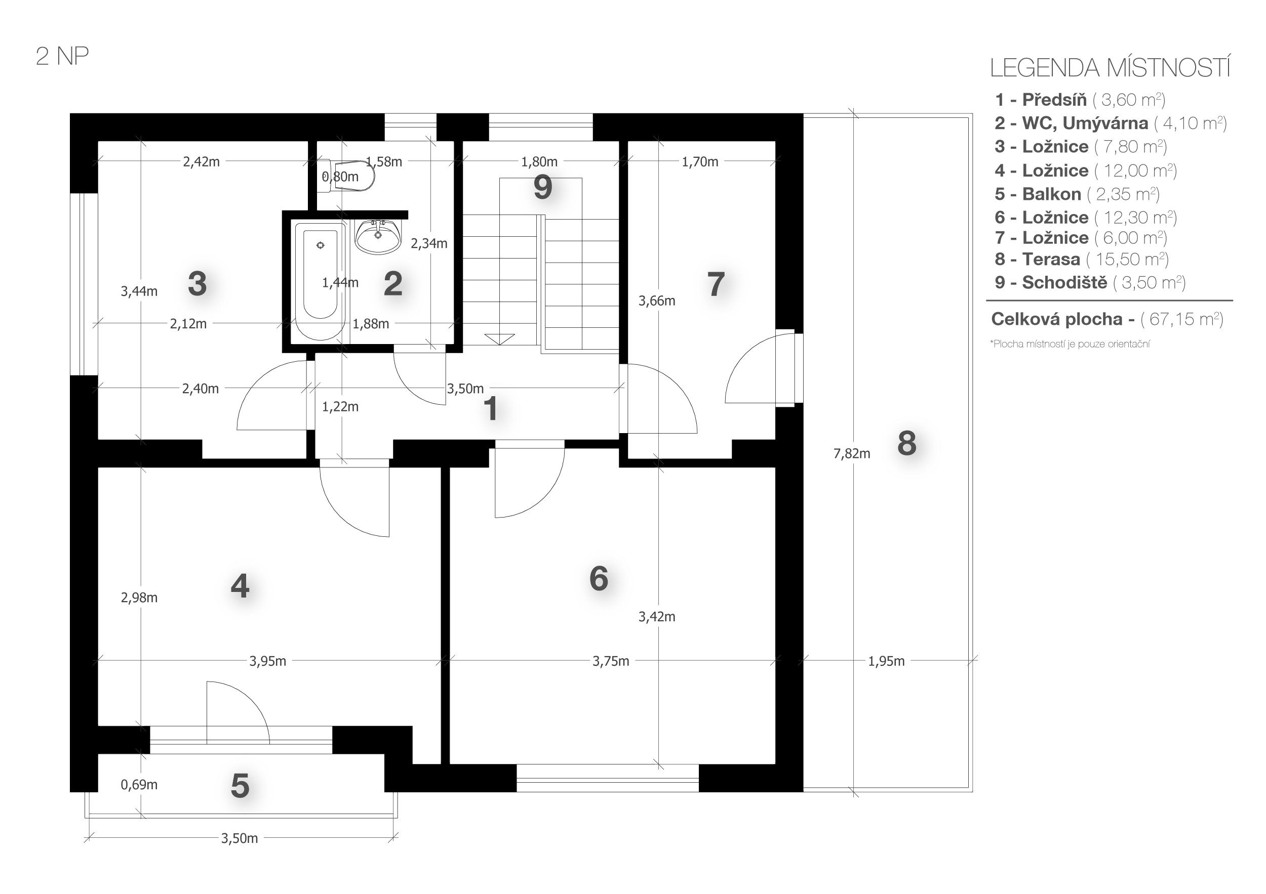
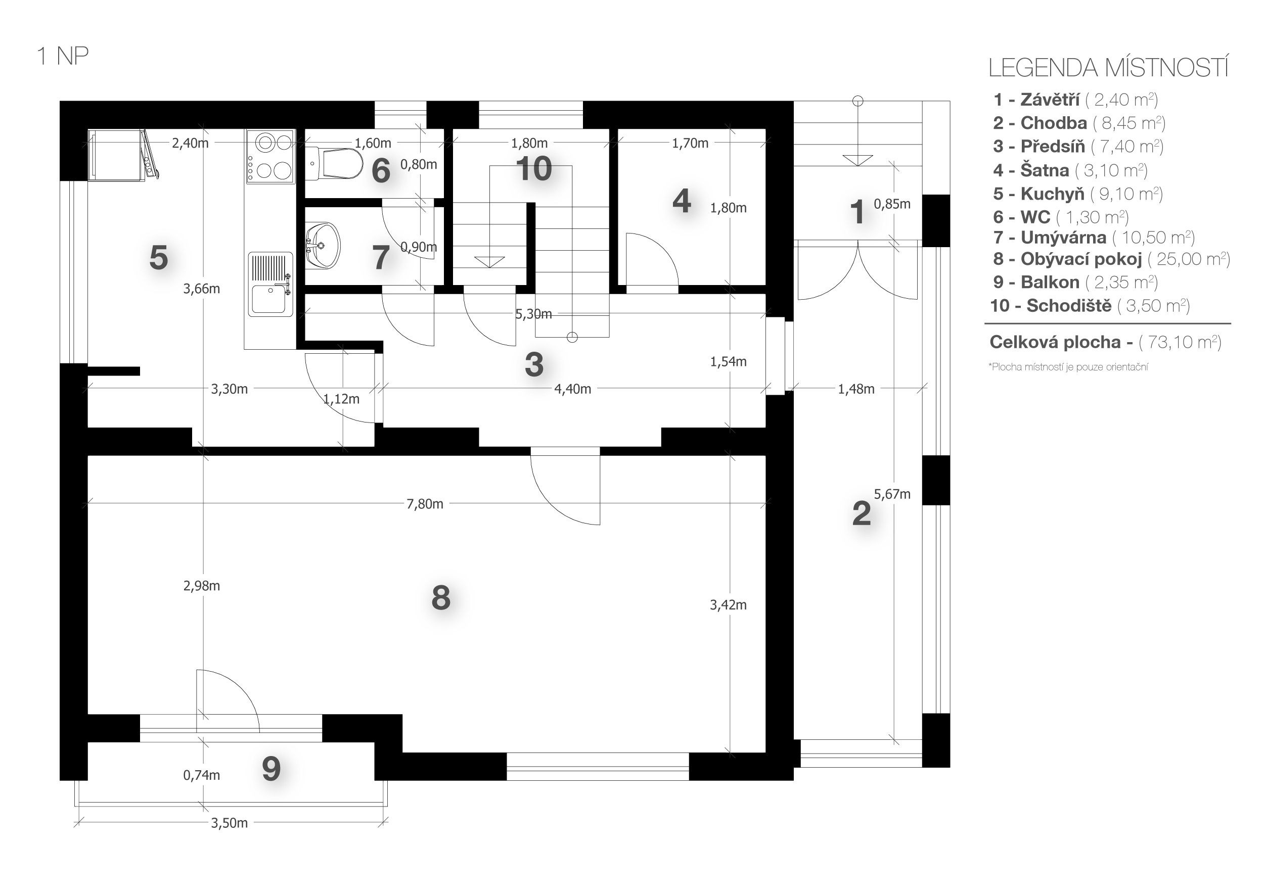
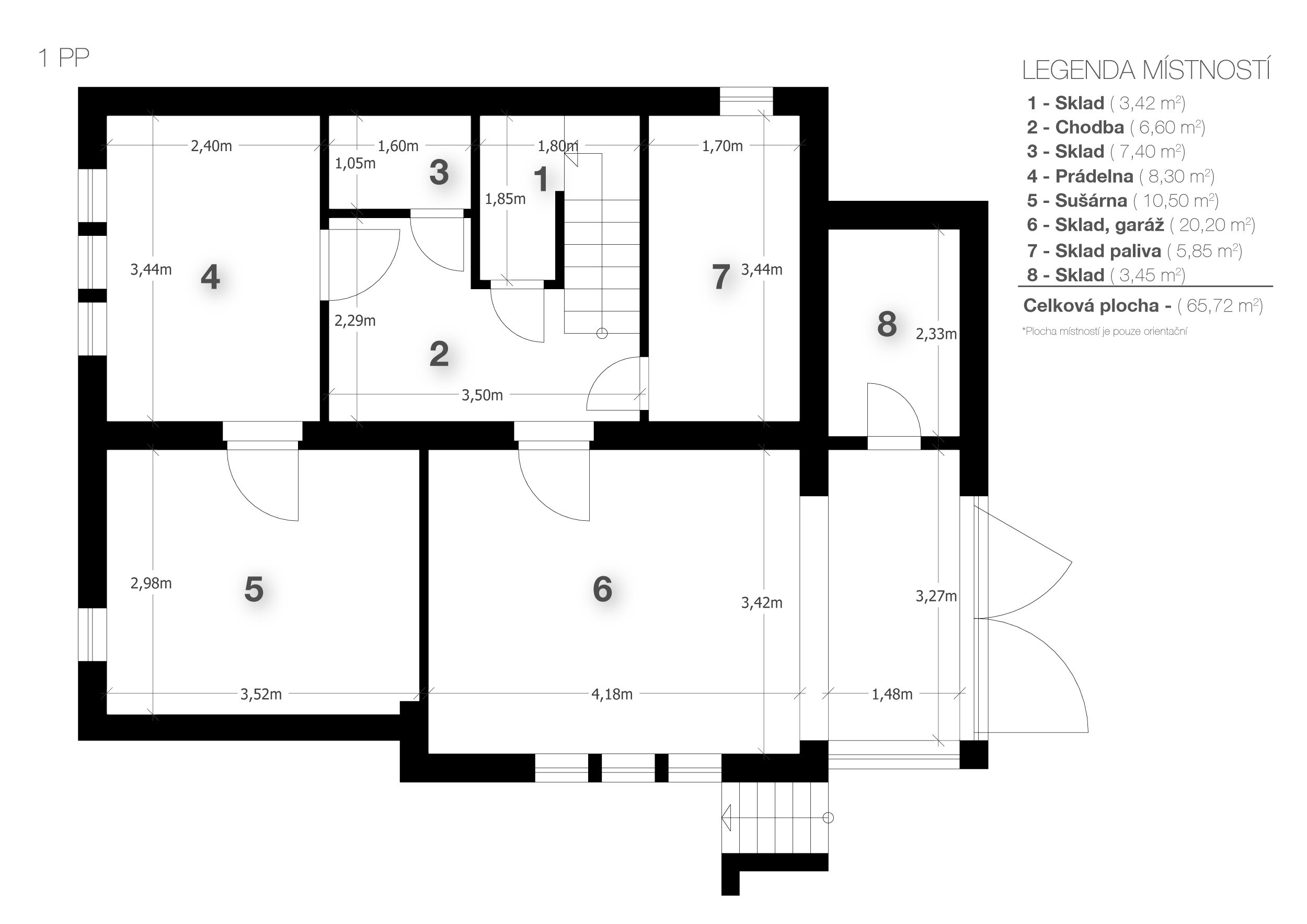
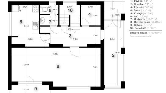
Dům má celkovou výměru 186 m² a dispozici 5+1. V suterénu je garáž a technické zázemí, v přízemí obývací pokoj, kuchyně a koupelna, v patře čtyři pokoje, koupelna a šatna. K domu patří svažitá zahrada s výměrou 694 m².

Obývací pokoj vám dá prostor pro rodinná setkání i chvíle soukromí. Má přímý vstup na balkon a když budete chtít, může tu vzniknout i terasa s výhledem, který vám zlepší každý den. 

Kuchyně je hned vedle přes chodbu, takže to pro něco na zub není daleko. A s knížkou si můžete zalézt na verandu s výhledem do lesů. 

V patře jsou čtyři samostatné pokoje, ze kterých může být krásná ložnice, dětský pokoj, kancelář i šatna. Dva pokoje mají navíc přístup na terasu a balkon. Ranní shon vám zjednoduší dvě koupelny, jedna v přízemí a druhá v patře. 

V suterénu je garáž, kde zaparkujete a uložíte nářadí nebo sportovní vybavení. Jsou tu také technické místnosti – prádelna, sušárna a kotelna se skladem na palivo.

Zahrada o velikosti 694 m² se svažuje do tří úrovní oddělených kamennými zídkami. Najdete tu vzrostlé ovocné stromy i okrasné keře. Místa je dost na dětské hřiště, záhonky i venkovní posezení.

Technické parametry:

Dům vytápí plynový kotel BAXI. V přízemí a patře jsou plastová zdvojená okna z roku 2000, v suterénu původní dřevěná. Voda a kanalizace jsou napojeny na obecní síť. Stavba je z roku 1968 a je v původním stavu – rekonstrukce bude potřeba, ale můžete si ji udělat přesně podle sebe.


Prodávající si vyhrazuje právo vybrat kupujícího na základě jím zvolených kritérií.

Popis

Probudit se s výhledem na Křížový vrch, vyprovodit děti do školy přes ulici a po práci relaxovat na terase obklopené zelení… Hledáte dům, který můžete proměnit v domov přesně podle svých představ? V Českém Krumlově na vás čekají celá tři podlaží potenciálu.

Dům má celkovou výměru 186 m² a dispozici 5+1. V suterénu je garáž a technické zázemí, v přízemí obývací pokoj, kuchyně a koupelna, v patře čtyři pokoje, koupelna a šatna. K domu patří svažitá zahrada s výměrou 694 m².

Obývací pokoj vám dá prostor pro rodinná setkání i chvíle soukromí. Má přímý vstup na balkon a když budete chtít, může tu vzniknout i terasa s výhledem, který vám zlepší každý den. 

Kuchyně je hned vedle přes chodbu, takže to pro něco na zub není daleko. A s knížkou si můžete zalézt na verandu s výhledem do lesů. 

V patře jsou čtyři samostatné pokoje, ze kterých může být krásná ložnice, dětský pokoj, kancelář i šatna. Dva pokoje mají navíc přístup na terasu a balkon. Ranní shon vám zjednoduší dvě koupelny, jedna v přízemí a druhá v patře. 

V suterénu je garáž, kde zaparkujete a uložíte nářadí nebo sportovní vybavení. Jsou tu také technické místnosti – prádelna, sušárna a kotelna se skladem na palivo.

Zahrada o velikosti 694 m² se svažuje do tří úrovní oddělených kamennými zídkami. Najdete tu vzrostlé ovocné stromy i okrasné keře. Místa je dost na dětské hřiště, záhonky i venkovní posezení.

Technické parametry:

Dům vytápí plynový kotel BAXI. V přízemí a patře jsou plastová zdvojená okna z roku 2000, v suterénu původní dřevěná. Voda a kanalizace jsou napojeny na obecní síť. Stavba je z roku 1968 a je v původním stavu – rekonstrukce bude potřeba, ale můžete si ji udělat přesně podle sebe.


Prodávající si vyhrazuje právo vybrat kupujícího na základě jím zvolených kritérií.

Cena

7 190 000 Kč za nemovitost

Lokalita

Český Krumlov - Nádražní Předměstí

Kontaktujte makléře

ŽIVOT V ŽÁDANÉ LOKALITĚ

Nádražní Předměstí patří mezi nejžádanější lokality Českého Krumlova. A není se čemu divit. Škola stojí přímo naproti domu, školka je pár minut chůze. Vlakové nádraží a zastávky MHD máte v dosahu. 

I do historického centra Českého Krumlova to máte pěšky za pár minut. Obchody, služby, restaurace – všechno hned po ruce. A když vyrazíte na procházku, hned jste na jedné ze stezek vedoucích na Kleť. 

highlight 1

Kontaktujte makléře

Podobné nemovitosti v nabídce

Vybíráme pro vás z těch nejlepších nemovitostí po celé zemi. A pokud si z naší nabídky vyberete, stačí kontaktovat makléře, který se vám bude plně věnovat.

Prodáno

RODINNÝ DŮM V ČESKÉM KRUMLOVĚ

9 800 000 Kč

Český Krumlov

VÍCE

Není v nabídce

REKREAČNÍ DŮM SE ZAHRADOU U LIPNA

9 990 000 Kč

Horní Planá

VÍCE

Rezervováno

BYTOVÝ DŮM SE 4 BYTY V BĚLÉ U MALONT

7 600 000 Kč

Malonty - Bělá

VÍCE
VÍCE PODOBNÝCH

Přihlásit k newsletteru