BYT 2+KK V MNÍŠKU POD BRDY

Cena

4 680 000 Kč za nemovitost

Lokalita

Mníšek pod Brdy

Popis

Po práci provětrat kolo, ochutnat dobroty na farmářských trzích nebo jen tak bloumat brdskými lesy… Chcete žít klidně a přírodě na dosah, ale do tepající metropole to mít sotva čtvrthodinku? Nastěhujte se do zrekonstruovaného bytu v Mníšku pod Brdy.

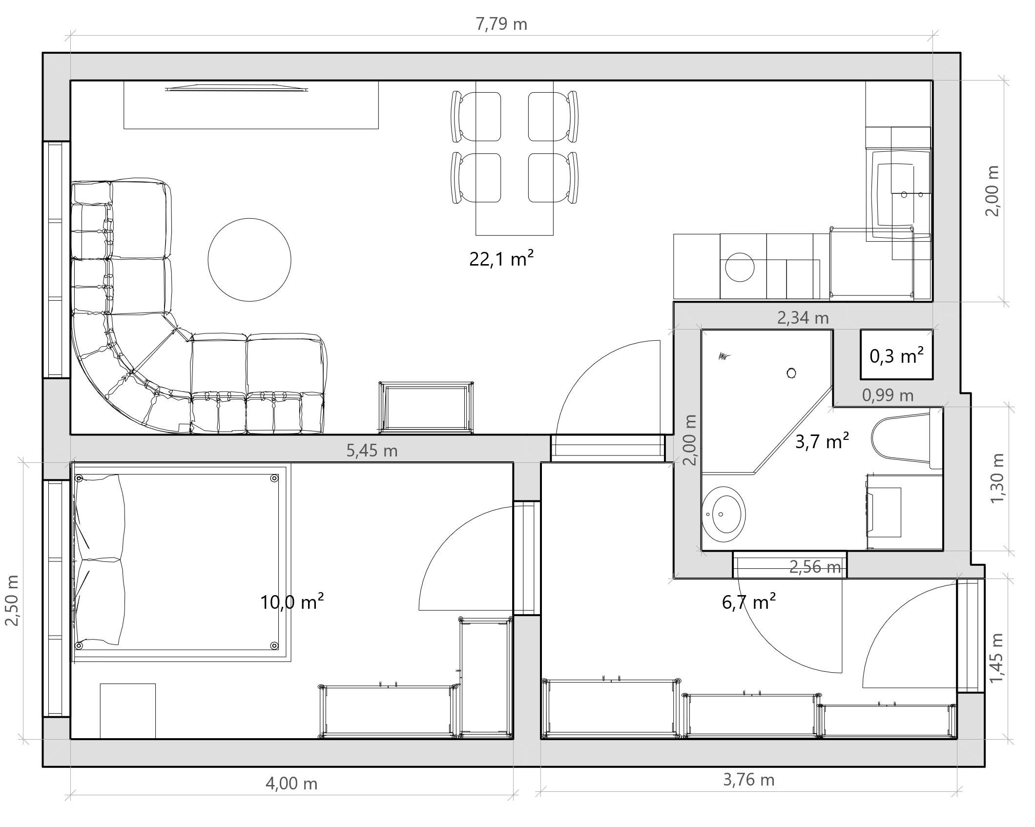
Dispozice bytu je 2+kk a celková výměra 46 m2 . Čeká tu na vás obývací pokoj s kuchyňským koutem, ložnice, koupelna a chodba s vestavěnou skříní, kam uložíte všechny věci.

Obývák s kuchyní mají výměru 22 m2 a výhled z okna na místní zámek si jednoduše zamilujete. Protože byt prošel před pár lety rekonstrukcí, vařit budete u krásné moderní linky. Místa je tu dost na jídelní stůl i pořádnou sedačku.

Pod peřinu s knížkou si zalezete do útulné ložnice a relaxační koupel si dopřejete ve velké rohové vaně. V zrekonstruované koupelně je kromě toho toaleta i dost místa na pračku. 

Byt je ve 3. patře panelového bytového domu po revitalizaci. Nová fasáda skvěle vypadá a nové zateplení se postará o příjemné vyúčtování energií. Před domem je vždycky dost místa na zaparkování. 


Technické parametry

Byt je v osobním vlastnictví a prošel kompletní rekonstrukcí. Ohřev vody i vytápění je centrální. 

Prodávající si vyhrazuje právo vybrat kupujícího na základě jím zvolených kritérií.


Popis

Po práci provětrat kolo, ochutnat dobroty na farmářských trzích nebo jen tak bloumat brdskými lesy… Chcete žít klidně a přírodě na dosah, ale do tepající metropole to mít sotva čtvrthodinku? Nastěhujte se do zrekonstruovaného bytu v Mníšku pod Brdy.

Dispozice bytu je 2+kk a celková výměra 46 m2 . Čeká tu na vás obývací pokoj s kuchyňským koutem, ložnice, koupelna a chodba s vestavěnou skříní, kam uložíte všechny věci.

Obývák s kuchyní mají výměru 22 m2 a výhled z okna na místní zámek si jednoduše zamilujete. Protože byt prošel před pár lety rekonstrukcí, vařit budete u krásné moderní linky. Místa je tu dost na jídelní stůl i pořádnou sedačku.

Pod peřinu s knížkou si zalezete do útulné ložnice a relaxační koupel si dopřejete ve velké rohové vaně. V zrekonstruované koupelně je kromě toho toaleta i dost místa na pračku. 

Byt je ve 3. patře panelového bytového domu po revitalizaci. Nová fasáda skvěle vypadá a nové zateplení se postará o příjemné vyúčtování energií. Před domem je vždycky dost místa na zaparkování. 


Technické parametry

Byt je v osobním vlastnictví a prošel kompletní rekonstrukcí. Ohřev vody i vytápění je centrální. 

Prodávající si vyhrazuje právo vybrat kupujícího na základě jím zvolených kritérií.


Cena

4 680 000 Kč za nemovitost

Lokalita

Mníšek pod Brdy

Kontaktujte makléře

BYT PO KOMPLETNÍ REKONSTRUKCI

Chcete se přesunout do vlastního a nelámat si hlavu s nákladnou rekonstrukcí? Tak to je pro vás tenhle byt jako dělaný. Majitel před pár lety kompletně zrekonstruoval bytové jádro a vás tak nečekají žádné velké investice do úprav. 

V bytě je nová moderní kuchyňská linka, v koupelně velká rohová vana a na chodbě vestavěné skříně, do kterých uložíte všechny své věci. Stačí přidat nábytek podle svého vkusu a můžete bydlet.

highlight 1

PERFEKTNÍ VYBAVENOST A PŘÍRODA NA DOSAH

V Míšku pod Brdy vám nebude nic scházet – do školky, k doktorovi nebo na hřiště to budete mít pár minut pěšky. U bytu je zastávka autobusu, který vás doveze do centra i po okolí a díky nájezdu na dálnici jste za 15 minut na kraji Prahy. 

Okolí je plné cyklistických tras a turistických stezek. Od jara do zimy můžete objevovat krásy brdských lesů a až vám po výletě vyhládne, stačí si opéct buřt u lesního baru.

highlight 2

Kontaktujte makléře

Podobné nemovitosti v nabídce

Vybíráme pro vás z těch nejlepších nemovitostí po celé zemi. A pokud si z naší nabídky vyberete, stačí kontaktovat makléře, který se vám bude plně věnovat.

Prodáno

BYT 1+KK NA PRAZE 4

3 990 000 Kč

Praha 4

VÍCE
VÍCE PODOBNÝCH

Přihlásit k newsletteru